Skip to main content
Projecten

Inrichting Apotheek Pasbrug

5 Apotheek Pasbrug Mechelen

Persoonlijkheid in een commerciële context

Hoe maak je het verschil als apotheek? Met een persoonlijk en toch commercieel interieur.

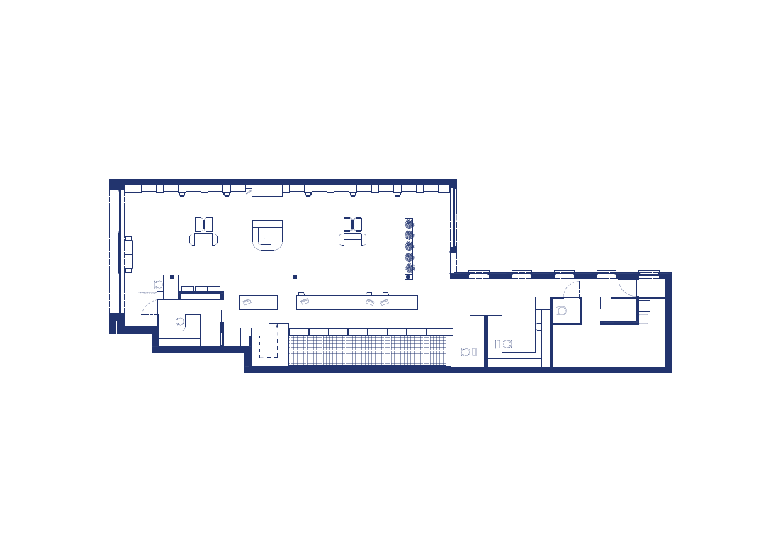
Met een heldere circulatie en optimale benutting van de beschikbare oppervlakte. Zeker als die relatief smal en diep is. Voeg daarbij nog een esthetische laag in de vorm van een speelse nisindeling, een originele terracottavloer en een behangaccent voor een geheel eigen identiteit. In het volledige interieurontwerp is rekening gehouden met de nieuwbouwapotheek die aan beide zijden toegankelijk is via een aparte inkom.

1 Apotheek Pasbrug Mechelen

De lange wandkast is ingedeeld in goed gedefinieerde nissen, elk met voldoende witruimte ertussen. Zo krijgt elk product zijn eigen plekje en ervaart de klant overzicht en orde. De lichte, neutrale tinten met accentwanden sluiten aan bij de branding.

20231120 HVH NZ8 3050
2 Apotheek Pasbrug Mechelen
4 Apotheek Pasbrug Mechelen
Een kleine terracottakleurige tegel vormt de warme, karaktervolle ondergrond van het ontwerp en geeft houvast aan de rest van de materiaalkeuzes. De matte afwerking zorgt voor een ambachtelijke uitstraling.
Losse, lichte meubels in het midden van de ruimte bieden de mogelijkheid om promotiestands of seizoenspresentaties eenvoudig te herconfigureren. Door variatie in vormgebruik, met ronde hoeken, subtiele reliëfs en wisselende dieptes in de kastwand ontstaat een ritmiek die uitnodigt tot (her)ontdekken.